V-604 | Custom 3-4 Bedroom & 2, 5 Bathroom Single Story House | Ready Bungalow Home Plans Drawing
* House Description:
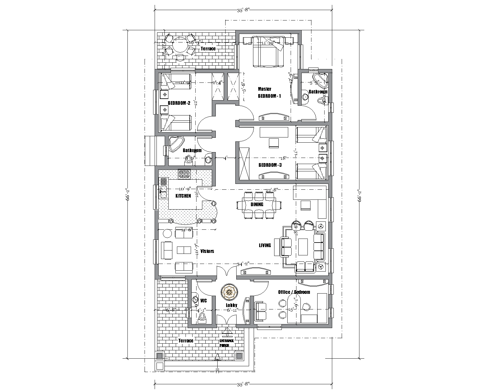
Ground Floor: Entrance Lobby, Huge Living Visitors Hall, Kitchen with Drinking Bar, Dining Room, 3 Bedroom + Office, 2.5 Bathroom, Terrace.
Floor Size: 35'-8"x66'-8"
(11 x 20 M)
Ground Floor Area: 2212 Sq. ft
(205 M2)
--------------------
* Drawings Description:
The Set of Designs and Drawings Drawn to SCALE in Accurate Dimensions and Measurements in PDF file will be including the Following:
1- Ground Floor Plans: Shows horizontal cutaway for rooms, walls, partitions, windows and doors
2- Furniture's Plan: Shows the furniture location for all Rooms.
3- Elevations Plan: (4 Nos.) Shows the exterior views.
4- Sections Plans: (2 Nos.) Sections A-A and B-B, Shows a Vertical cutaway view.
5- Roof Plan: Shows air view of the roof with slopes of roof surfaces.
6- Foundation Plan: Shows footing, beams and the construction Grid.
7- Setting out Plan: (1 No.) Shows location of the House, on the land plot.
8- 3D External Perspective: (2 Nos.) Colored Shows the External View of the house.
9- Fence Layout: with Details Plan, Elevation, Section.
10- Schedule: of Doors and Windows sizes.
11- Copyright Release: to have the Authority to use the Full Set of plans for your Personal Use.
--------------------
* For
Sale: The House Plans in PDF files Ready for Instant
Download
if you like to BUY them Click the
Link:
https://www.etsy.com/uk/PanoramaHousePlans/listing/857692830

















